一部屋に水廻りまるごとリフォーム事例について、間取り考案の軌跡をご紹介します。
まず、施工前の間取りはこちら

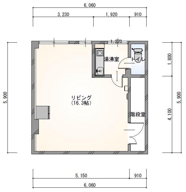
鉄骨造テナント兼自宅の2階一室。室の外形が正方形とシンプルな居室で、お風呂は別室で、水廻りもミニキッチンとトイレのみの最低限の設備がありました。
ここで秋の間取り脳トレ開始!
mission:この居室に、シャワールームを設置、他水廻りのリニューアルで一部屋で全て完結するように設備を凝縮した自分空間とするため、最適な間取りを考えたい!
【不採用Plan1】 費用を最小限におさえて考えてみる
-1.jpg)
もともとの水廻りの壁は壊さず、また増設するシャワールームを、もとの排水経路と近くして給排水設備工事、解体費用を最低限で押さえるプラン。
しかし、問題がありました。
図の水色マーカー範囲は、天井高が低い(かつ天井ふところも十分でない)ゾーン。シャワールームは最小で当てはめても、シャワールームユニットが入らない!そして何より、既存のトイレ開戸の開口部とぶつかってしまいます。ご覧の通り、開戸を引戸にしたところで、実用的なトイレの使用が不可能なため、不採用となりました
【不採用Plan2】
-3.jpg)
シャワールームを天井高が確保できる青ラインより居室中央側に移動。また階段室と並行に洗面室通路を設け、そこへ並列にシャワールームを配置することで洗面室へ入ってすぐには脱衣場の様子が分からないように配慮しました。
しかし、ここでも問題点がありました。
赤点線上に梁が走行し水色のゾーンよりシャワールームを南へはもってこれないため、洗面室入口は間口最大70㎝、またシャワールーム横壁にデッドスペースが生じ、そこを壁付け棚にするか…とご相談ののち、不採用となりました。
【不採用Plan3】

シャワールームを図面向かって横置きに変更。キッチンを西面壁に平行配置へ。まず、キッチンへ西日が差し込むため、食品扱いには不向き、トイレ利用時に脱衣スペースが見えてしまうこともあり不採用となりました。
【採用Plan】

キッチンはもとの走行へ戻し、シャワールーム前の脱衣スペースをトイレ前に間仕切りを入れて、空間的に仕切った形でご希望がかなう間取りとなりました。
改修前(玄関から全体1)
改装-6-1024x724.jpg)
改修後(玄関から全体1)

改修前(玄関から全体2)
改装-1-1024x724.jpg)
改修後(玄関から室全体2)

改装前
改装-3-1024x724.jpg)
改装後(キッチンスペース)

施工後(洗面所)



施工後(シャワールーム)


入口に間接照明をご採用
*コメント*
間取り変更は、お客様の想いを組み、それに寄り添いながらも、いかに快適・実用的なプランとなるかの提案も大切と日々実感しています。なじみのお客様と家は3度建てようやく思い通りとなるとよく言ったものだとお話したことがあります。まさに皆さまの声の集積は明日の素敵な間取り提案の糧!